锡特主页 公司简介 新闻中心 产品中心 生产车间 在线订单 在线招聘 联系我们
   
 
 
 
无锡市锡特散热器厂
无锡市新区硕放镇新农路9号
邮编:214142
联系人:杨建清
手机:13806177272
联系人:莫其林
手机:13706185583
联系人:朱向东
手机:13812046870
传真:0510-85185588
http://www.tzsrq.com
E-mail:sales@tzsrq.com
2794066955@qq.com
 
欢迎您来到锡特在线留言系
统感谢您对我们提出宝贵意
见或相关咨询,我们会及时
回复信息,请留心查阅。
产品质量以优争先,销售服务以诚为本,合同往来以信为荣  
我公司广招业内精英人士共创辉煌!员工是企业经营口之魂,善于学习和敢于创新的员工是企业最大的财富,
企业努力实现员工与企业共
同成长、共铸辉煌。
 
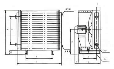
FL系列油冷却器

FL系列油冷却器主要用行走机械(挖掘机、装截机、叉车、起重机、联合收割机、沥青摊铺机、筑路机械、工程车辆等)并适用于液压系统、润滑系统、冷却系统等,将工作介质冷却到要求温度。

一、采用空气做为冷却介质有以下优点:

1、介质无污染 2、介质取之不尽 3、结构简单、无热阻

型号含意: FL—空气冷却器;20—换热面积(m2)

二、冷却器性能参数

l、传统系数:≤55 W/m2℃

2、设计:温度100℃

3、工作压力:1.6MPa

4、压力降:0.1MPa

三、制造工艺形式

1、整体铜轧制螺旋翅片管;

2、整体铝轧制螺旋助片管;

3、光管缠绕翅片,翅片可根据需要为铝、铁、铜;

4、光管冲压成型翅片焊接。

使用须知

1、较脏的介质通过冷却器之前,应有滤清器。

2、最好安装在一个单独的油循环回路内,防止升压超过工作压力。

3、在启动冷却器之前,应先检查风机是否安装正确,各螺钉是否紧固等。

4、先启动风机后,再慢慢通过冷却介质。

5、在使用前最好将器内空气排净,以提高换热效率。

6、在寒冷季节停用时,应放掉冷却器内的剩油。

型号

A

B

C

D

E

F

H

C1(max)

G

J

风量
(m3/h)

风机功率
(KW)

风机号
(T30)

重量
(kg)

FL2

390

392

260

M22×1.5

240

242

225

95

61

170

805

0.05

21/2

46

FL3.15

340

414

260

M22×1.5

286

245

225

95

67

170

935

0.05

21/2

49

FL4

375

440

260

M22×1.5

310

245

225

95

67

170

1065

0.09

21/2

54

FL5

410

478

288

M27×2

310

295

260

97

67

208

1390

0.09

3

65

FL6.3

460

502

288

M27×2

340

295

260

97

67

208

1610

0.09

3

71

FL8

480

530

318

M36×2

356

295

260

97

86

268

1830

0.09

3

92

FL10

550

596

318

M36×2

415

345

290

69

89

268

2210

0.12

31/2

110

FL12.5

570

650

400

M36×2

454

405

330

60

89

340

3340

0.25

4

131

FL16

670

650

400

M36×2

454

405

330

60

89

340

3880

0.25

4

147

FL20

720

756

434

M42×2

575

500

390

35

90

374

6500

0.55

5

183

FL35

970

908

610

JB81-59
Dg50Pg10

680

680

520

80

103

450

15000

2.2

7

309

FL60

1500

810

550

JB81-59
Dg65pg10

400

1428

390

100

130

200

8000×2

0.75×2

6×2

420

我司有专业的热工计算,可以帮客户除标准型外定制,设计非标准型散热器,翅片管,换热器,表冷器,冷却器以满足各种广大客户的需求。

本厂服务宗旨“产品质量以优争先,销售服务以诚为本,合同来往以信为荣”。竭诚欢迎广大客户前来我司选购洽谈。

销售部经理: 13812078280

电话:0510-85186177

联系人:邵经理

上一页:GLL型卧式冷却器下一页:BR板式冷却器
    
 
苏ICP备12043494号-2